投資項目
初期の投資プロジェクトには、商業用不動産の建設、集合住宅の建設、一戸建住宅の建設、住宅賃貸、建物管理などが含まれます。現在、熊本市菊陽町周辺にて、2区画の土地を取得し、建設計画を進めています。
商業用不動産開発計画地
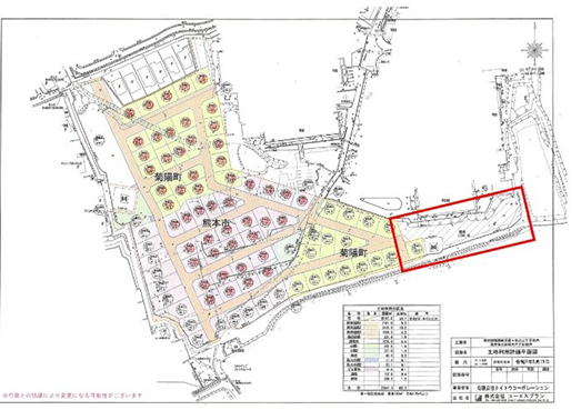
土地Bの取得位置
「日友不動産」を事業主体とし、熊本県菊陽町において総開発面積1,720㎡の土地を取得の上、開発を行うものである。本計画では、自己所有地にて全110室のマンションを建設し、賃貸専用物件として長期的な運営を行う。想定入居者層は、当地域の産業集積および開発需要の拡大に伴い流入が見込まれる、半導体関連を含むエンジニア、技術者、並びに商務従事者等とする。

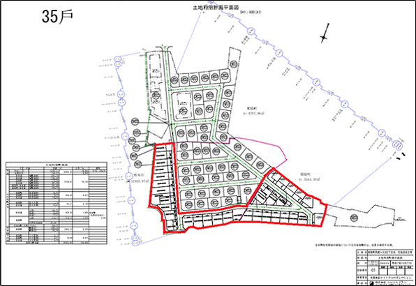
「日誠不動産」を事業主体として、戸建住宅の建設および販売事業への投資を行う。熊本県菊陽町近郊において土地一筆を取得し、戸建住宅を開発対象とした建設計画を現在推進中である。
戸建住宅建設用地 位置図